Вариатор опережения зажигания для ГБО на Максиму

Модераторы: Бармаглот, тах, Анатолий Васильев, Gamlet

Ответить
Аватара пользователя
muchacho
Рядовой
Сообщения: 16
Зарегистрирован: 06 мар 2013 21:22
Автомобиль: Nissan Maxima A33, VQ30DE, АКПП

Вариатор опережения зажигания для ГБО на Максиму

Сообщение muchacho »

Привет, парни! Имею Ниссан Максима А33, 3л, автомат, стоит ГБО. Приобрёл вариатор Микролуч, хочу установить сам. Парни, откликнитесь, кто сам устанавливал вариатор, желательно микролуч на данный авто. Хотелось бы услышать советы по установке, а именно: цвет сигнального провода ДПКВ и место врезки в его проводку, место врезки в проводку ДПРВ, место установки самого вариатора, как запитывали - напрямую от аккума или через замок зажигания, начальные настройки программы. Спасибо заранее!!!
john614
Рядовой
Сообщения: 41
Зарегистрирован: 21 ноя 2014 16:50
Автомобиль: Nissan Maxima A32 2.0 АКПП

Re: Вариатор опережения зажигания для ГБО на Максиму

Сообщение john614 »

можешь позвонить в тех поддержку микролучь и они проконсультируют. если в двух словах то нужно брать ИНд, подключать к ДПКВ и ДПРВ,врезка ближе к датчикам,питание с аккума
Вложения
Wiring Nissan Maxima.jpg
Аватара пользователя
muchacho
Рядовой
Сообщения: 16
Зарегистрирован: 06 мар 2013 21:22
Автомобиль: Nissan Maxima A33, VQ30DE, АКПП

Re: Вариатор опережения зажигания для ГБО на Максиму

Сообщение muchacho »

john614 писал(а):можешь позвонить в тех поддержку микролучь и они проконсультируют. если в двух словах то нужно брать ИНд, подключать к ДПКВ и ДПРВ,врезка ближе к датчикам,питание с аккума
Спасибо, что откликнулся. Я созванивался с ними, собственно, уже и вариатор приобрёл, разобрался что и к чему подключать. Весь вопрос в том, куда врезаться в ДПКВ. Если с распредвалом всё проще (врезаешься без проблем фактически перед самым датчиком, благо доступ есть), то к ДПКВ, который возле коробки кроме как из ямы не добраться, а это и защиту нужно снимать, короче кусок работы.
Вот я думал, что мне посоветуют, может где-то врезаться в другом месте сверху (вроде ж провода от него поднимаются вверх к разъёму, который за радиатором стоит... там рядом ещё от лямбд разъёмы. Или это не от ДПКВ? Короче где-то так.
gavrilov
Генерал-майор
Сообщения: 1036
Зарегистрирован: 18 янв 2008 11:51
Автомобиль: Maxima 3.0 SE. 2005г.
Откуда: Иркутск
Контактная информация:

Re: Вариатор опережения зажигания для ГБО на Максиму

Сообщение gavrilov »

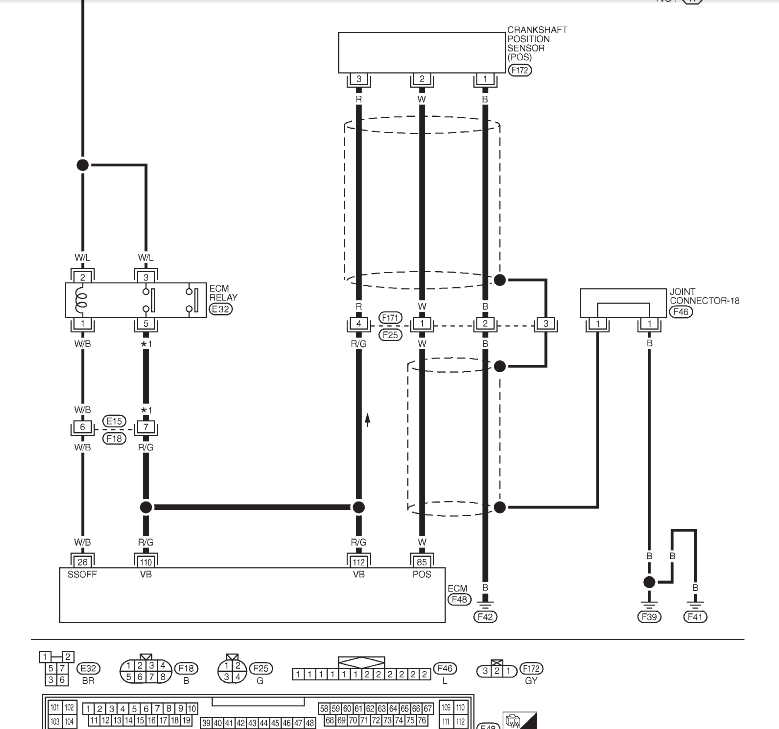
Лови


датчик_POS_2.jpg


датчик_POS_.jpg
Аватара пользователя
muchacho
Рядовой
Сообщения: 16
Зарегистрирован: 06 мар 2013 21:22
Автомобиль: Nissan Maxima A33, VQ30DE, АКПП

Re: Вариатор опережения зажигания для ГБО на Максиму

Сообщение muchacho »

Вот за это огромнейшее спасибо!!!
Ответить